Quantité
Total
Dont d' éco-part. DEEE
Il y a 0 produits dans votre panier. Il y a 1 produit dans votre panier.
Total produits
Frais de port  À définir
Total
Continuer mes achats Commander
Vos produits 0 produit

Total

Sous-total de la commande
0
00
Livraison
0
00
Total
0
00
Dont d' éco-part. DEEE

Geberit Bâti-support duofix sigma PMR avec renfort de barre Geberit (111.375.00.5)

  • Référence du produit: 111.375.00.5
  • EAN: 4025416753100
  • Marque: Manufacturer 5
Garantie du produit: 2 ans
689
90
TTC
712
76
Prix public conseillé
Le prix public conseillé (PPC) est un prix de revente conseillé par un fabricant à ses distributeurs.
Lorsqu’il s’agit d’un pack multi-marques, c’est alors la somme des PPC de ses composants.
( 3.21% d'économie)
Expédié habituellement sous 29 jours
Dont 0.07 d' éco-part. DEEE
Quantité:

Utilisation

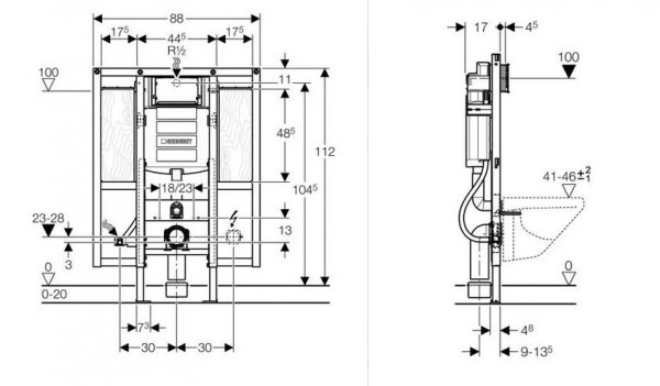
  • Pour la construction sur mur porteur ou cloison renforcée
  • Pour montage dans parois en applique à hauteur de local ou partielle 
  • Pour montage sur parois d'installation à hauteur du local 
  • Pour montage dans des parois Geberit Duofix à hauteur de local ou partielle 
  • Pour construction adaptée aux handicapés 
  • Pour WC suspendus avec dimensions de raccordement selon EN 33:2011 
  • Pour WC suspendus avec grande saillie jusqu'à 70 cm 
  • Pour fixer des barres de relevage 
  • Pour rinçage simple touche, double touche ou interrompable
  • Pour hauteur de chape 0–20 cm

Caractéristiques 

  • Cadre préparé pour supports des céramiques de WC avec petite surface d'appui 
  • Hauteur de montage du WC réglable dans la phase du gros-œuvre, 41–46 cm 
  • Pieds supports galvanisés, réglables 0–20 cm 
  • Pieds supports antidérapants
  • Plaques de pied rotatives, profondeur conçue pour l'installation sur profilés en U UW 50 et UW 75 et rails pour système Geberit Duofix 
  • Coude de raccordement pour différentes positions en profondeur, à monter sans outils, plage de réglage 45 mm 
  • Fixation du coude de raccordement avec isolation phonique 
  • Réservoir à encastrer avec déclenchement frontal, isolé contre la condensation 
  • Post-rinçage immédiat possible avec réglage d'usine
  • Travaux de montage et d'entretien sur les réservoirs à encastrer sans outils 
  • Arrivée d'eau à l'arrière ou par le haut au centre 
  • Le boîtier de réservation pour trappe de visite protège de l'humidité et de la poussière 
  • Boîtier de réservation pour trappe de visite pouvant être sectionné 
  • Plaque de montage en bois de placage, collage résistant à l'eau 
  • Équipé d'un fourreau destiné à la conduite d'alimentation pour raccordement des WC lavants Geberit AquaClean
Caractéristiques techniques du produit
  • Matière:Bois
  • Poids (kg):17.5
  • Type de bâti:CLASSIQUE
  • Marque bâti:Geberit
  • Nombre de composants:1
Ecrire un commentaire
Avis *
Les champs marqués d'un astérisque (*) sont obligatoires.
689
90
TTC
712
76
Prix public conseillé
Le prix public conseillé (PPC) est un prix de revente conseillé par un fabricant à ses distributeurs.
Lorsqu’il s’agit d’un pack multi-marques, c’est alors la somme des PPC de ses composants.

(3.21% d'économie)
Dont 0.07 d' éco-part. DEEE
Expédié habituellement sous 29 jours
Quantité:
Paiement sécurisé
Questions les plus fréquentes sur ce produit

Quels sont les plaques de commande compatibles avec le bâti-support Geberit Duofix Sigma PMR ?

Ce bâti support est compatible avec les plaques de commande Geberit des séries Sigma.

Double touche :
Sigma01, Sigma20, SIgma50, Sigma60, Sigma70, Bolero

Déclenchement infrarouge :
Sigma80, Sigma10

Simple touche :
Sigma10, Mambo, Tango

Avis clients
François B.
15/04/2025

Envoi en temps et heure correct

Manuel N.
14/04/2025

Bon article livraison rapide

Philippe G.
17/03/2025

Impeccable, deux achats réalisés avec contact service client et résolution rapide de petits problèmes.

Philippe H.
04/02/2025

Fournisseur fiable et délai court Le SAV est réactif et compétent je recommande sans hésiter

4.5/5